Caractéristiques des portes d’entrée ED
Fonctions de base que doivent remplir les portes d’entrée :
- visuel – la structure est la décoration de la façade principale de la maison, elle influence l’apparence de l’ensemble du bâtiment. Pour cette raison, sa finition doit être assortie aux autres portes et fenêtres ;
- thermique – les portes sont conçues pour augmenter le confort thermique, c’est-à-dire empêcher l’air froid de pénétrer à l’intérieur et, en même temps, empêcher la chaleur de s’échapper vers l’extérieur ;
- isolant – protection contre l’eau et le vent entrant dans la pièce ;
- acoustique – la porte est une barrière entre l’intérieur et l’extérieur, protégeant la maison contre le bruit excessif ;
- sécurité – protection contre l’intrusion de personnes indésirables.




Caractéristiques des portes d’entrée :
- en bois ou en bois-aluminium ;
- cadre ou panneau ;
- s’ouvrant vers l’extérieur ou vers l’intérieur ;
- avec une parclose standard (unilatérale, comme dans les fenêtres) ou une parclose « tuyau » double face (LFO) ;
- peuvent être fabriquées comme des « portes d’écurie » , c’est-à-dire des structures à deux vantaux avec un poteau mobile horizontalement ;
- simple ou double vantail;
- possibilité d’utiliser des lumières supérieures ou latérales dans diverses configurations ;
- disponible en trois épaisseurs – 68, 80 et 92 mm ;
- la largeur maximale des portes à un seul vantail est de 1,2 m et celle des portes à deux vantaux de 2,1 m ;
- possibilité de réaliser des portes cintrées ou des fenêtres latérales supérieures ;
- disponibilité de panneaux en bois, de croisillons et de tasseaux ;
- disposent de ferrures pour portes en bois assurant confort et sécurité ;
- large choix de solutions de seuil;
- la finition des menuiseries, les essences de bois et les couleurs des ferrures s’harmonisent parfaitement avec les autres portes et fenêtres.


Modèles de portes d’entrée
Vous trouverez ci-dessous des exemples de portes en bois se distinguant par leur construction robuste et leur design élégant. Chaque modèle disponible peut être associé à des fenêtres latérales et supérieures, offrant ainsi davantage de lumière et soulignant le caractère de l’espace. Grâce à leur large gamme de configurations, ces portes s’intègrent parfaitement aux intérieurs modernes comme classiques. Un autre avantage réside dans la personnalisation quasi illimitée des couleurs, des finitions et des ornements, permettant à chaque porte de refléter pleinement le style et les goûts de chacun.
Grâce à notre parc de machines moderne et à notre vaste expérience, nous pouvons également réaliser des projets sur mesure. Sur demande, les portes peuvent être fabriquées selon le projet du client, après une consultation technique préalable permettant de sélectionner les solutions optimales en termes de design, de technologie et de matériaux. Cette approche flexible garantit une qualité de fabrication irréprochable, une attention méticuleuse aux détails et une entière satisfaction quant à l’adéquation du produit aux exigences et aux attentes esthétiques de l’investisseur.
Variantes de portes d’entrée en bois
Les graphiques ci-dessous présentent des portes d’entrée en bois s’ouvrant vers l’intérieur, de la ligne de produits Modern, dans la variante de vantail de 92 mm d’épaisseur, avec des seuils Gutmann Weser (s’ouvrant vers l’intérieur).
Porte d’entrée en bois ouvrant vers l’intérieur




Portes à cadre et à panneaux
Les graphiques ci-dessous montrent les deux types de portes à ouverture vers l’intérieur de la gamme de produits Modern avec le seuil GG Combi (20 mm). Dans le cas de la variante avec cadre, l’épaisseur du vantail et du cadre de la porte est de 92 mm, tandis que dans l’option panneau ThermalDoor MS, elle est de 80 mm.


Portes d’entrée en bois – gammes de produits
Quel que soit le vitrage choisi, les portes d’entrée en bois sont disponibles dans les gammes de produits suivantes : Moderne, Soft, Art, Old et Classic.
Bande simple face

Bande de tuyau double face LFO
Dans ce cas, le cadre de la porte semble identique à celui utilisé lorsqu’une bande simple face est utilisée. Cela signifie que le fraisage externe et interne du cadre, ainsi que le fraisage externe de l’aile, ressemblent au dessin ci-dessus. La différence est visible dans le profil intérieur du vantail de porte et dans les bandes double face.
Attention! Les profils des lignes Classic, Art, Old et Modern sont livrés en standard avec les bandes correspondantes. La différence réside dans le profil Soft – le fraisage extérieur et intérieur du cadre et du vantail extérieur est le même que dans la gamme de produits Soft (visible sur le croquis ci-dessus), cependant, la bande décorative Art est installée en standard . Si le client souhaite choisir la bande Soft, cela doit être clairement indiqué lors de la passation de commande.

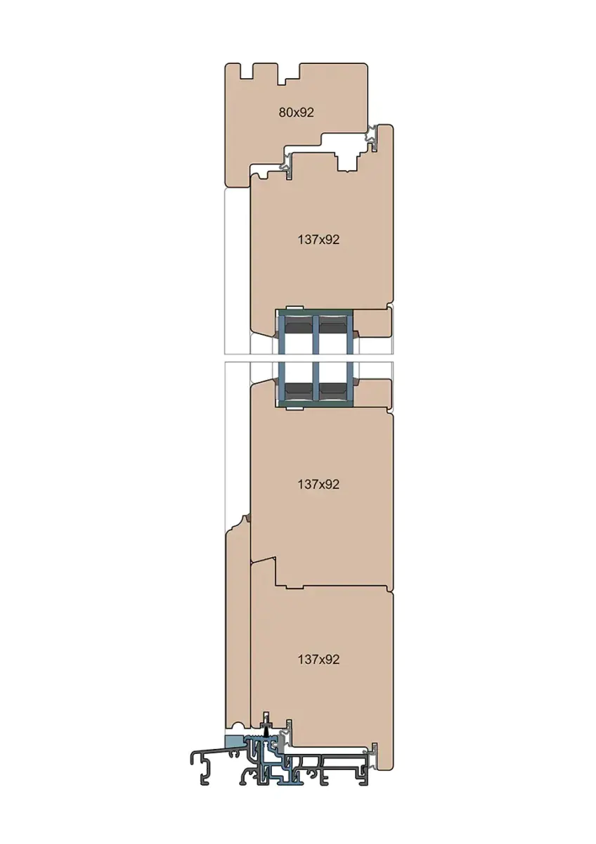
Division des portes ED selon l’épaisseur du profil
Les portes d’entrée en bois sont disponibles en trois épaisseurs : 68, 80 et 92 mm. Chaque option est disponible en cinq variantes de gamme de produits. Le graphique ci-dessous montre une coupe transversale d’une structure de la ligne Modern, d’une épaisseur de 92 mm, avec un seuil Weser dans la porte s’ouvrant vers l’intérieur et un seuil ATD dans la porte s’ouvrant vers l’extérieur.
Portes en bois avec une bande simple face standard

Portes en bois avec bande double face

Fonctions et formes des portes d’entrée ED
Les portes d’entrée en bois standard sont de forme rectangulaire. Ils sont disponibles en versions à un ou deux vantaux. Ils peuvent également prendre d’autres formes, par ex. arc . Comme dans le cas des portes patio FD, les impostes des portes d’entrée, en plus d’être rectangulaires ou cintrées, peuvent également avoir la forme d’ellipses, de trapèzes, de triangles, etc. Il est également possible d’utiliser des lattes, des barres en bois et des panneaux de porte en bois .




Types de poteaux mobiles dans les portes en bois
Les portes d’entrée en bois à deux vantaux sont fabriquées à partir de ce qu’on appelle poste mobile. Dans ce type de construction, après ouverture des deux vantaux, aucun élément ne limite le passage. Le montant mobile de l’offre MS Okna i Drzwi est disponible en deux variantes :
- version standard avec une poignée placée sur le vantail actif – le vantail passif est verrouillé à l’aide de loquets haut/bas, et le déverrouillage s’effectue à l’aide de la poignée,

- variante optionnelle avec deux poignées (une sur le vantail actif et l’autre sur le vantail passif). Dans cette solution, chaque vantail s’ouvre en tournant la poignée.

Bois et finitions de peinture disponibles
Dans le cas des portes d’entrée en bois, plusieurs types de bois sont disponibles et une vaste palette de couleurs , comprenant des glacis et de nombreuses couleurs opaques. Cela permet aux structures de s’adapter parfaitement à la façade du bâtiment, ainsi qu’aux autres portes et fenêtres utilisées.
Équipement standard des portes d’entrée ED
En standard, les portes d’entrée ED utilisent les mêmes composants que les portes-fenêtres French Doors. Il s’agit notamment de ferrures pour portes en bois , de silicone , de joints pour structures en bois et de panneaux de portes en bois .
Seuils pour portes d’entrée en bois
Les portes d’entrée en bois peuvent être équipées de plusieurs types de seuils, permettant au client d’obtenir une solution optimale. Les graphiques ci-dessous montrent des portes à cadre de la gamme de produits Modern (épaisseur du profil : 92 mm) avec des exemples de seuils.
- Portes en bois s’ouvrant vers l’intérieur (avec parclose unilatérale) – seuil bas GG Combi (20 mm).

- Portes en bois s’ouvrant vers l’intérieur (avec parclose à doucine bilatérale LFO) – seuil bas GG Combi (20 mm).

Portes en bois Portes d’écurie
À première vue, les portes d’écurie ressemblent à des structures standard à un seul vantail. Il existe cependant une différence significative entre ces solutions. Les portes d’écurie sont des portes à deux vantaux avec un poteau mobile horizontal. Des coupes transversales de ce type de structures s’ouvrant vers l’intérieur et vers l’extérieur sont présentées dans le graphique ci-dessous.

L’utilisation d’un montant mobile horizontal permet au vantail supérieur de s’ouvrir indépendamment du vantail inférieur.

Les portes d’écurie sont parfaites pour les propriétés de style rustique, les chalets de campagne, les maisons d’été et les bâtiments de style grange moderne. De nombreuses personnes les choisissent également pour des projets plus contemporains. Par exemple, ces structures sont utilisées comme portes de cuisine, qui permettent de sortir de la pièce vers la terrasse ou la cour. Cette solution pratique permet d’ouvrir la moitié supérieure de la porte tandis que la moitié inférieure reste fermée. De plus, il est possible d’ouvrir les deux vantaux simultanément, comme dans les structures standard à un seul vantail.


Ce type de solution est idéal pour les personnes qui souhaitent garder un œil sur les enfants ou les animaux qui jouent dans le jardin, surveiller les entrées et les sorties de la propriété ou empêcher les gens de quitter la maison tout en assurant un apport d’air frais à l’intérieur. Les portes d’écurie peuvent s’ouvrir vers l’extérieur ou vers l’intérieur de la pièce, comme illustré dans les schémas ci-dessous.

Accessoires pour portes d’entrée en bois
Afin d’augmenter la fonctionnalité des portes d’entrée en bois, il est possible d’équiper la structure des accessoires suivants :
- poignées de porte dans une finition assortie à la couleur des poignées de fenêtre ou en acier inoxydable,
- poignées de porte et panneaux anti-effraction,
- poignées de porte,
- judas,
- ferme-portes.














